Дом из керамблоков: история одной стройки

О хозяине
Готовый домХозяин дома — Александр Казак — не понаслышке знаком со стройкой: имеет соответствующее образование, знания и многолетний опыт работы в строительной отрасли, возглавляет фирму по импорту и оптовой продаже строительных материалов. Специалисты его компании неоднократно помогали многим застройщикам воплощать их мечту в реальность, поставляя качественные строительные материалы и предлагая надежных исполнителей для стройки.

О строительство дома из керамических блоков
Площадь общая 189.4 м2
Площадь жилая 65.8 м2
Стены: пустотелые пористые керамические блоки «Porotherm (Поротерм)», клинкерный кирпич «Roben», штукатурка «quick-mix»
Крыша: керамическая черепица «Koramic»

Предыстория стройки дома из керамоблоков
План домаЭтот дом — уже второй, который построил Александр. Первый он соорудил 15 лет назад. Тот дом был большой, площадью более 600 “квадратов”. И, завершая строительство, Александр в какой-то момент пришел к выводу, что для его семьи такое огромное и помпезное строение будет и ненужным, и экономически невыгодным. И продал его. А вместо него решили построить пока небольшой загородный коттед-ждачу; чтобы семья могла в выходные дни там отдыхать и выращивать собственные овощи, фрукты и ягоды.

Об участке
Так выглядел участок до начала стройкиУчасток предопределили... родственники будущего домовладельца. В одном из поселков неподалеку от Киева расположен их дом. По соседству с ним продавался земельный надел со старой глиняной хатой. Участок приглянулся будущим домовладельцам. Дополнительными аргументами за покупку именно этого надела стали также удобная транспортная развязка (траса по направлению к Фастову) и близость к Киеву.
Площадь участка — 40 соток. Земля — чернозем, хорошая почва для выращивания овощей, фруктов и ягод. Территория равнинная. Все было отлично. За исключением... ямы. У дороги, как раз в том месте, где следовало установить забор, проходил достаточно глубокий ров, который можно было бы как-то обыграть с точки зрения ландшафтного дизайна, если бы это был не фасадный забор с калиткой и воротами. Поэтому Александр решил яму засыпать.

Проект и планировка дома из керамических блоков
Фрагмент стены: с облицовкой и безВыбирая проект, будущие домовладельцы руководствовались принципом рациональности. Внешне же здание должно было напоминать сельскую усадьбу.
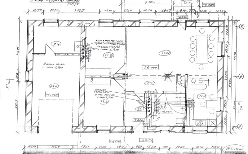
Пересмотрев множество вариантов проектов в интернете и журналах, застройщики остановили свой выбор на решении одного архитектурного бюро, на котором было представлено компактное одноэтажное строение. В плане дом включал прихожую, кухню, столовую, гостиную, две спальни, санузел и гараж с бойлерной. И хотя наличие в доме гаража не всегда считается рациональным, хозяева решили, что он нужен, так как в гараже они запланировали установить генератор, а в бойлерной — систему фильтрации и очистки воды.
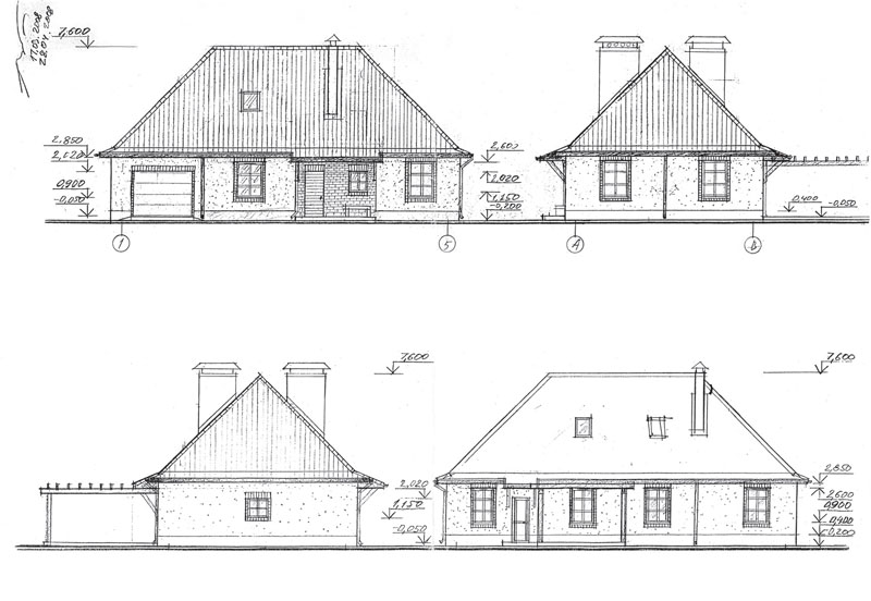
Поскольку дом на картинке был одноэтажным, будущий домовладелец обратился к украинскому архитектору, попросив заложить в проекте на перспективу возможность освоить мансардный этаж, запроектировав для этого уклон крыши 45 градусов. Архитектор разработал проектную документацию, ее согласовали, застройщики получили разрешение на строительство и были начаты общестроительные работы.

О главных шагах стройки дома из керамоблоков
Чертеж домаСначала был вырыт котлован. Выбранной землей засыпали яму под фасадным забором.
После этого был устроен ленточный фундамент.
Параллельно смонтировали септики, пробурили скважину и построили колодец для подачи воды. Земля от их монтажа тоже была использована для засыпки ямы. Далее наступил этап возведения стен. Стены из “Поротерма” с монолитным поясом вместе с кладкой клинкерного кирпича на цоколе, фасадном фрагменте и вентиляционных трубах были возведены за 30 дней. Затем за 45 дней была устроена стропильная система и уложена черепица. Потом установлены окна-двери, выполнены фасадные работы.
Дом готов.
От фундамента до финишной черты всех общестроительных и внешних работ стройки дома прошло три месяца.

О материалах
Александр КазакАлександр Казак, домовладелец, директор компании ОКСАМИТ-ИНТЕР
Я изначально и однозначно решил, что буду строить дом только из экологически чистых, долговечных и комфортных материалов.
Для стен выбрал поризованные керамические блоки «Поротерм» австрийского концерна ВИНЕРБЕРГЕР. Об этих блоках я знаю более 15 лет, видел дома из них и бывал в них сначала в Германии, Чехии, затем в Польше, а теперь уже и в Украине. В Европе 80% домов строится из блоков, и половина из них — керамические блоки типа «Поротерм». В сравнении с другими стеновыми материалами, а именно газобетоном, пенобетоном, шлакоблоками, использование керамических поризованных блоков обеспечивает высокий коэффициент сопротивления теплопередаче и при этом гарантирует отсутствие сырости, плесени, грибков, так как стены из «Поротерма» хорошо «дышат». По прочности, экологичности и долговечности Решение трубы: каналы перекрыты сверху, а сбоку – оцинкованные решеткиконкуренцию «Поротерму» могут составить только стены из обожженного кирпича, но по теплу они сильно проигрывают. Слишком толстые (толщиной 2–3 метра) стены пришлось бы строить из кирпича, чтобы получить одинаковое значение сопротивления теплопередаче. И лишь применение «Поротерма» позволяет в один год построить фундамент, стены и кровлю, так как поризованные блоки укладываются в 5 раз быстрее кирпича. Поэтому выбор для материала был однозначно в пользу блоков «Поротерм».
Для кровли я выбрал натуральную черепицу. Металлочерепица сильно нагревается на солнце (~110 °С), «гремит» от ветра и дождя и рано или поздно (гарантия ~10 лет) поржавеет. При этом снеговую нагрузку держат деревянные стропила, а это в Киеве и области – 202 кг/м2, да еще ветровая нагрузка – 45 кг/м2. В общем, какой финишный кровельный материал не выбирай, а деревянный подкровельный каркас во всех случаях должен быть примерно одинаковой прочности. Все расхожие разговоры об облегченной конструкции кровли, в случае металлочерепицы — это, как говорят, разговоры в пользу бедных, которые, как и жадные, платят дважды. В битумных материалах, как и в асфальте, происходят канцерогенные испарения (я человек городской и уже Интерьер решен просто и лаконичнодостаточно надышался битумом из асфальта), поэтому альтернативы керамической черепице в выборе кровельного материала не было, да и до сих пор не вижу.
Окна установил металлопластиковые, с хорошими энергосберегающими характеристиками, они не такие экологичные, как деревянные, но практичней в обслуживании.
Хорошо утеплил пол — вместо 5 «стиродура» уложил 5-сантиметровый слой более теплого и прочного полиуретана. Крышу хорошо утеплил минеральной ватой.
Правильно применив материалы, в результате я построил экологичный, долговечный, теплый и энергосберегающий дом.

О строителях
Общеизвестно, что от качества строительных работ на 50% зависит успех стройки. Поэтому несмотря на то, что “Поротерм” легко монтируется, были выбраны местные каменщики, пригодные к обучению нюансам монтажа этого материала. Что касается монтажников кровли, то это были опытные, хорошо подготовленные кровельщики — бригада, давно работающая на фирме застройщика.

Об инженерии
В графическом редакторе подбирался цвет оконной рамы. Выбрали белый цветБудущие домовладельцы от газа отказались. Посчитав, что подключение газа к их дому, а также покупка и установка котла, труб, батарей и т. д. обошлись бы в “кругленькую” сумму, они сделали выбор в пользу электроотопления. Тем более, что дом расположен в поселке, куда подведено нормальное электричество. Перебоев со светом здесь практически не бывает и не должно быть. Установили конвекторы с термодатчиками и очень довольны своим решением. Дополнительный плюс электроотопления: никакого риска утечки газа, что в особенности важно, когда дом эксплуатируется не круглый год.
В дальнейшем хозяин рассматривает варианты использования в доме нестандартных источников тепла — солнечных батарей и ветрогенераторов.
В доме хорошо организована система вентиляции.
Для получения питьевой воды во дворе пробурена скважина. Установлены современная системы полива, водоснабжения и очистки.
Канализационная система представляет собой септики аэробной и неаэробной очистки, после которой вода практически пригодна для полива.

О керамической черепице
Василий АндриечкоВасилий Андриечко, технический консультант компании ВИНЕРБЕРГЕР
Хозяин этого коттеджа очень ответственно подошел к выбору кровельного материала, решив покрыть крышу керамической черепицей «Koramic» компании WIENERBERGER (ВИНЕРБЕРГЕР). Ведь главным критерием при выборе кровельного материала является его долговечность. Учитывая, что основным назначением кровли будет защита дома от атмосферных воздействий окружающей среды, в первую очередь, необходимо оценить способность того или иного материала противостоять этим воздействиям. Керамическая черепица «Koramic» наиболее полно отвечает вышеназванным требованиям к крыше и кровле. Этот высококачественный кровельный материал обладает множеством уникальных преимуществ, а именно: эстетичным внешним видом, надежностью и долговечностью, огнестойкостью, абсолютной устойчивостью к ультрафиолетовому излучению, кислотным дождям, резким перепадам температуры, вес черепицы способен защитить кровлю даже от ураганов! Черепица обладает большой теплоемкостью, медленно нагревается, что препятствует Зимний ландшафтобразованию конденсата. Благодаря зазорам в пазовых замках, где всегда циркулирует воздух, очень просто решается вопрос вентиляции кровли, что очень важно при обустройстве жилой мансарды. Керамическая черепица – также отличный звуковой изолятор, что особенно важно для домов с мансардными окнами. Кроме того, следует упомянуть экологичность материала: керамическая черепица производится из натуральной глины без каких-либо вредных примесей. Керамическая черепица «Koramic» — это широчайший выбор профилей, изобилие цветовых вариантов и вариантов покрытия плиток. Модельный ряд насчитывает более трех сотен наименований. Сочетание дизайнерских характеристик черепицы «Koramic» с непревзойденным качеством делает «Koramic» лучшим выбором для создания действительно эксклюзивной кровли. Разнообразие профилей позволяет подобрать тот единственный, который наилучшим образом подчеркнет достоинства архитектуры здания и будет идеально подходить к техническим параметрам кровли. Коллекция профилей керамической черепицы «Koramic» включает 21 вид профилей, 12 цветов и все возможные виды обработки поверхности — натуральная черепица, ангобированная, благородная ангоба, глазурованная черепица.

P. S.
Александр планирует построить еще один дом — уже для постоянного проживания.
Дорогу осилит идущий!

Автор: Ольга Камоликова
Источник: Украинский Строительный Каталог (Секреты успешной стройки)


Строительно-монтажные работы:

топ
Поверхностные аэраторы для прудов, Поверхностные аэраторы для бассейнов Проектно-монтажная компания «РЫБПРОМСЕРВИС».
топ
Оборудование для рыбоводства, СОВРЕМЕННОЕ ОБОРУДОВАНИЕ И ИНВЕНТАРЬ ДЛЯ РЫБНЫХ ПРЕДПРИЯТИЙ ИЗ ФЕРМЕРСКИХ ХОЗЯЙСТВ ИЗ ЕВРОПЫ, Аппараты лоточные инкубационные Проектно-монтажная компания «РЫБПРОМСЕРВИС».
топ
Ограждения из нержавейки Ампир-Авант
топ
Ограждения Ампир-Авант
 

Вы не зарегистрированные на сайте. Авторизуйтесь или зарегистрируйтесь пожалуйста.

Похожие статьи

  • ТОП-6 новинок для бассейнов от компании Моё Море (moemore.ua)

    Пытаетесь представить, как именно будет обустроен ваш бассейн, интуитивно понимая, что его гармония скрывается в деталях? Представляем несколько решений для вдохновения!

  • Строительство бассейна: ключевые моменты

    если вы не специалист в сооружении бассейнов и не знаете тонкостей этого дела настолько, чтобы самостоятельно контролировать все этапы работ, то при выборе подрядчика, претендующего на воплощение вашей мечты в жизнь, стоит учесть множество моментов.

  • Шторы своими руками

    Так почему же пошить шторы своими руками это лучше, чем приобрести в ближайшем салоне? А преимущества состоят в следующем...