Проект 18006
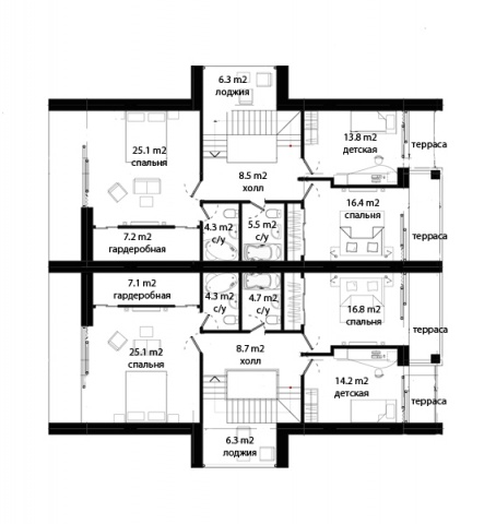
| Площадь - общая: | 185.26м2 | |
| Площадь - жилая: | 87.84м2 | |
| Габаритные размеры: | 15.80 x 14.61 | |
| Кол-во комнат: | 8 | |
| Количество этажей: | 2 этажа | |
| Фундамент: | монолитный ж/б | |
| Материал стен: | газобетонный блок | |
| Материал перекрытий: | монолитные ж/б | |
| Материал кровли: | кровельная ПВХ мембрана | |
| Отделка фасада: | штукатурка | |
| Комплектация проекта: | АР, КР, ВК, ОВ, ЭО | |
| Стоимость проекта: | 000 грн. | |
Аргументы За
- Современный проект 2-х этажного компактного дома в стиле нео-модерн, удачно сочетающий простые, четкие линии с удобной, комфортной планировкой
- «Изюминка» дома - эксплуатируемая крыша, которая может быть обустроена по желанию хозяев, также проектом предусмотрены лоджии и террасы
- Создается ощущение света и простора за счет панорамных окон, а светлый фасад дома, декорированный термо-деревом бросается в глаза, подчеркивая эстетический вкус его хозяев
- Спроектирован просторный гараж на 2 машины с удобным подъездом.
Смотрите также
Строительство дома
Дом-«улей» и дом-«летающая тарелка»Долговечный, энергоэффективный, комфортный для жизни, вместе с тем с необычной архитектурой фасадов, самобытный – именно такой дом можно построить, применяя инновационные технологичные материалы.
Проект и согласование
Услуги по приобретению права собственности или пользования (аренды) земельным участкомРегистрация права собственности и права пользования на земельные участки - это официальное подтверждение таких юридических фактов, как возникновение и прекращение права, а также переход прав.
Вынос в натуру границ участкаДля точного определения координат используются тахеометры и спутниковая навигация.
Инженерия
Как выбрать кондиционер для разных помещений?Сложность решения также сводится к огромному ассортименту предложений. С одной стороны это очень хорошо, а с другой – просто сбивает с толку покупателя. В таких случаях, чтобы купить кондиционер удобно использовать многофункциональный сервис поиска товаров в интернет-магазинах E-Katalog, где...
Как сделать поверхностный водоотводПоверхностный водоотвод легко можно обустроить своими руками. О том, как это делать, и что следует использовать, далее.
























Комментарии
Оставить комментарийВы не зарегистрированные на сайте. Авторизуйтесь или зарегистрируйтесь пожалуйста.